Дома из бруса
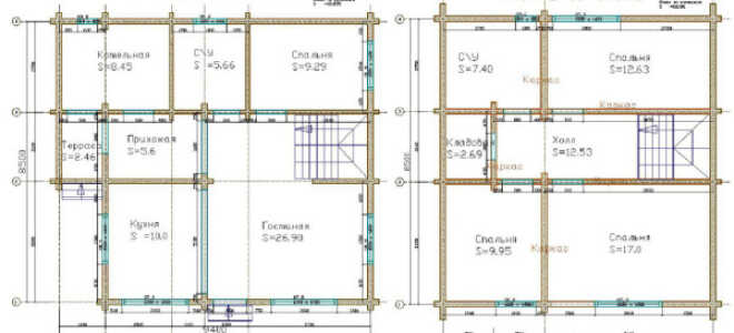
Стоимость постройки дома из бруса
На стоимость постройки дома из бруса оказывает влияние целый ряд факторов. Важны не только использованные материалы, но и способ постройки...
Как самому сделать циркулярную пилу: пошаговая инструкция
В продаже всегда имеется большой выбор инструментов, применяемых для работы на дачном участке. Циркульная пила необходима каждому хозяину. Циркулярная пила...
Чем обработать дерево от влаги и распространения тления?
Дерево, являясь строительным материалом, владеет, помимо широкого списка плюсов, целым рядом минусов. Основным из них является восприимчивость к влажной среде....
Химическая обработка древесины: антисептирование и консервирование
Древесина — это экологичный материал для отделки и строительства. Но при воздействии внешних факторов: дождя, ветра, перепада температур, солнечных лучей,...
Стоимость монтажа дома из бруса
Объем запланированных работ — это, что определяет стоимость монтажа дома из бруса. Однако важны и иные моменты: процесс строительства дома...